
Bộ Đà Đỡ Dao Cắt Tụ Bù Trung Thế Sản Xuất Theo Yêu Cầu
Lotech chuyên sản xuất và cung cấp bộ giá treo, xà đỡ dao cắt tụ cho các ứng dụng tụ bù ứng động lắp đặt ngoài trời:
- Tương thích lắp đặt dao cắt tụ bù đơn pha PS ABB Hitachi và dao cắt tụ UltraVAC-20 Hubbell.
- Vật liệu thép CT3 chịu lực tốt, mạ kẽm nhúng nóng bề mặt tăng độ bền và chống ăn mòn.
- Trọn bộ đà, xà, cổ dê cột điện đáp ứng lắp đặt máy cắt tụ bù lên cột BTLT ngoài trời.
Quý khách cần tư vấn lựa chọn vật tư thiết bị đóng cắt tụ bù và cập nhật giá mới nhất, có thể liên hệ qua tổng đài hỗ trợ miễn phí:
để tư vấn hoàn toàn miễn phí.
Bộ Đà Đỡ Dao Cắt Tụ Bù Trung Thế Sản Xuất Theo Yêu Cầu
Bên cạnh các thiết bị đóng cắt tụ bù nhập khẩu, Lotech cũng cung cấp trọn bộ vật tư phục vụ thi công lắp đặt nhanh gọn tại công trình. Trong đó, bộ đà đỡ dao căt tụ bù trung thế sản xuất theo yêu cầu đã và đang được sử dụng cho nhiều giàn tụ bù ứng động hiện nay.
- Đặc tính: Sản xuất từ thép CT3 mạ kẽm nhúng nóng bề mặt đem đến hiệu quả chịu lực, bền bỉ, chống ăn mòn và tăng tuổi thọ của sản phẩm.
- Thiết kế: Đáp ứng yêu cầu lắp đặt trên trụ điện lực (loại trụ bê tông ly tâm) với đảm bảo kết nối nhanh, tin cậy và chắc chắn.
- Ứng dụng: Phù hợp cho lắp đặt các loại dao cắt tụ bù trung thế ABB Hitachi PS15 - PS17 - PS25 và dao cắt tụ bù trung thế 1 pha UltraVAC-20 Trinetics Hubbell.
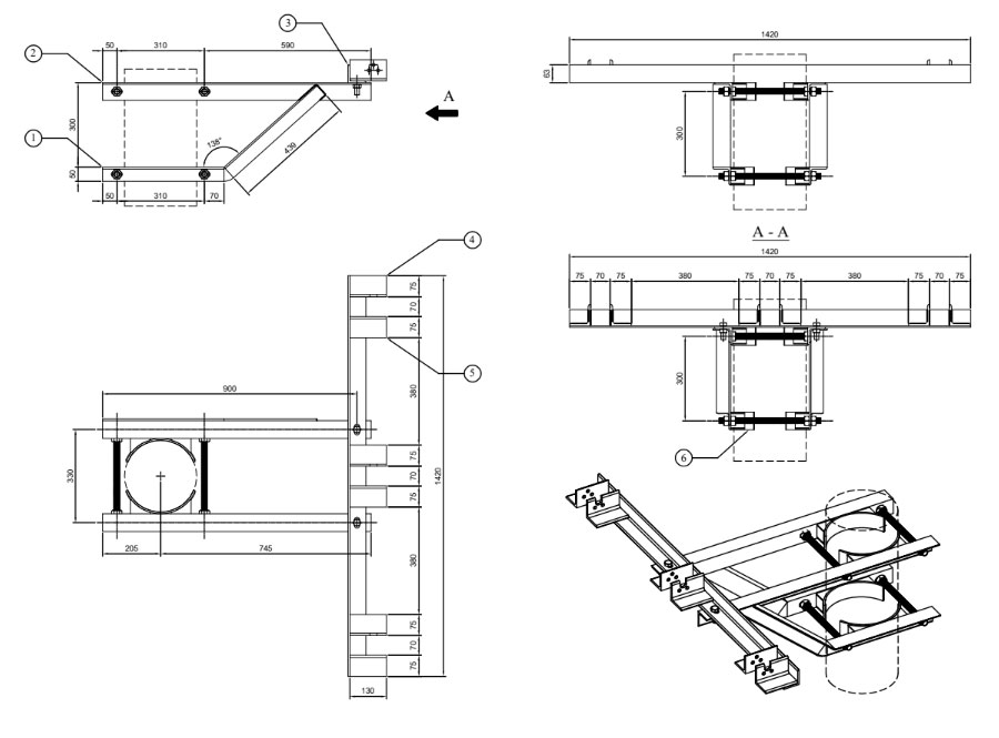
Tổng quan bộ xà đỡ dao cắt tụ

Yêu cầu kỹ thuật:
- Vật liệu thép CT3 hoặc tương đương.
- Mạ kẽm nhúng nóng, bề mặt lớp mạ ≥80μm.
Dung sai kích thước:
- Kích thước đến 35mm: ± 0.7mm.
- Kích thước lớn hơn 35mm: ±2%.
| STT | TÊN GỌI - QUY CÁCH | S.LG | ĐVT | V.LIỆU |
| 1 | Thép hình V50x50x5mm_869mm | 2 | Cái | CT3 |
| 2 | Thép hình V63x63x6mm_950mm | 2 | Cái | CT3 |
| 3 | Thép hình V63x63x6mm_1420mm | 1 | Cái | CT3 |
| 4 | Thép hình V75x75x8mm_150mm | 3 | Cái | CT3 |
| 5 | Thép hình V75x75x8mm_150mm | 3 | Cái | CT3 |
| 6 | Bộ định vị bắt vào trụ | 2 | Bộ | CT3 |
| 7 | Blong VRS M22x360 (+2 đai ốc) | 2 | Bộ | CT3 |
| 8 | Bulong M16x50 (+1 đai ốc) | 1 | Cái | CT3 |
| 9 | Bulong M10x100 (+1 đai ốc) | 6 | Bộ | CT3 |
| 10 | Bulong M10x120 (+1 đai ốc) | 9 | Cái | CT3 |
| 11 | Bulong M10x60 (+1 đai ốc) | 9 | Bộ | CT3 |
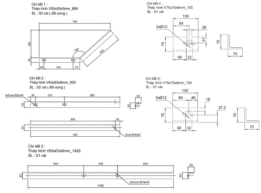
Chi tiết bộ đà đỡ dao cắt tụ bù 3 cái đơn pha

Chi tiết 1: Thép hình V50x50x5mm_869 số lượng 2 cái (đối xứng).
Chi tiết 2: Thép hình V63x63x6mm_950 số lượng 2 cái (đối xứng).
Chi tiết 3: Thép hình V63x63x6mm_1420 số lượng 1 cái.
Chi tiết 4: Thép hình V75x75x8mm_130 số lượng 1 cái.
Chi tiết 5: Thép hình V75x75x8mm_130 số lượng 1 cái.
Bộ định vị bắt vào trụ (cổ dê cột điện) lắp cùng bộ đà đỡ dao cắt tụ

01. Pla_63x306x6mm số lượng 1 cái.
02. Bass_Pla 50x70x3mm số lượng 4 cái.
03. Thép hình V50x50x5mm_50mm số lượng 2 cái.
Quý khách cần tư vấn thêm về Bộ giá treo dao cắt tụ bù trung thế PS ABB Hitachi - UltraVAC Hubbell hoặc có yêu cầu đặt sản xuất riêng theo yêu cầu, có thể liên hệ tổng đài hỗ trợ miễn phí:
để mình tư vấn hoàn toàn miễn phí nhé.
Gửi số điện thoại thành công.























